
Komposition am Anger
Durch die ungerichtete, freie Anordnung und Ausrichtung formen die drei neu errichteten Studierenden-Wohnhäuser und die Kindertagesstätte zusammen mit dem Bestandsgebäude um einen gefassten, gemeinschaftlichen Hofraum einen neuen Campus in einer landschaftlich geprägten Umgebung – eine zeitgenössische Interpretation des dörflichen Angers als vielfältig nutzbarer Freiraum mit Flächen zum Verweilen, für Sport und Gartennutzung.
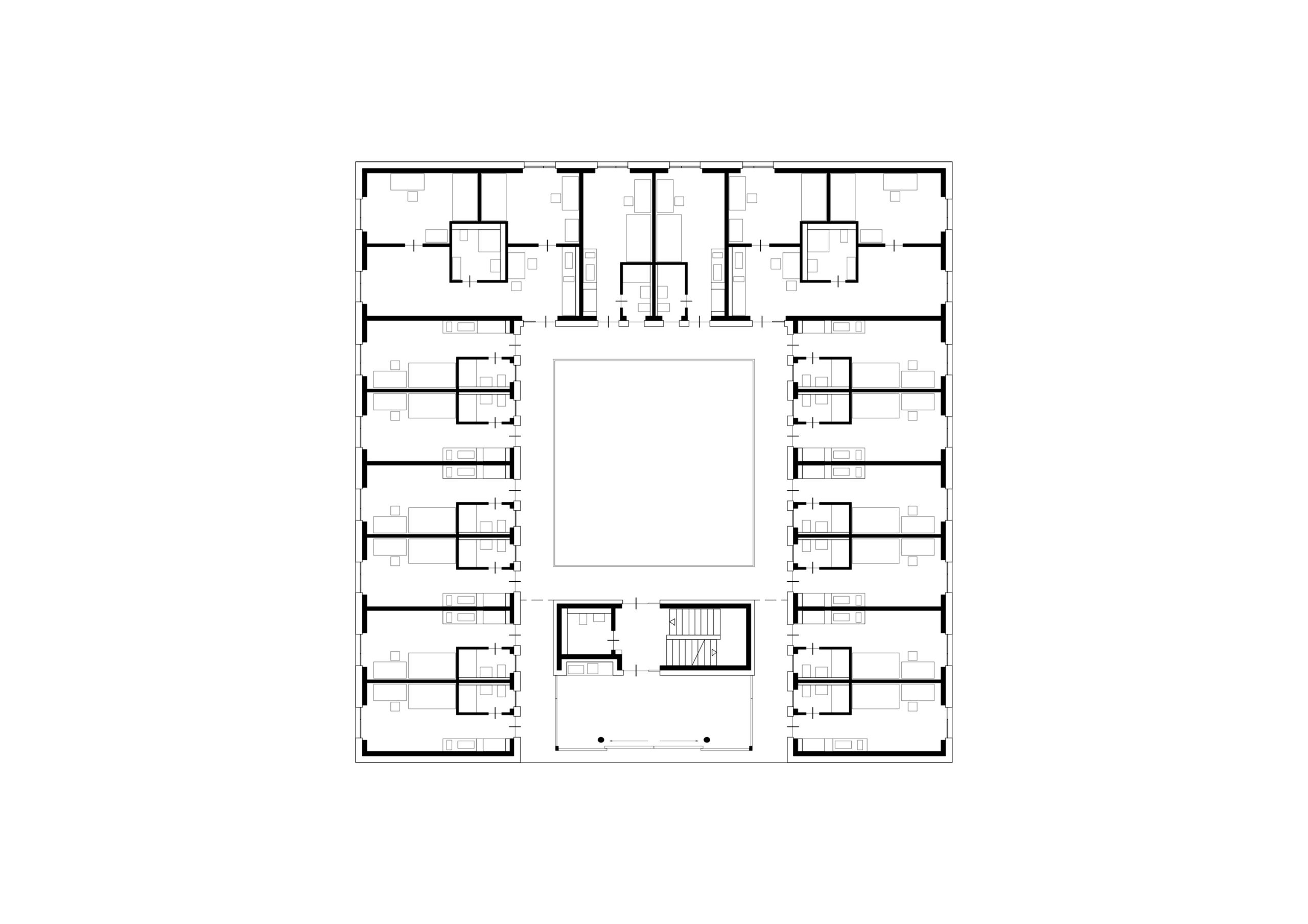
Sichtbeziehungen aus allen Wohnräumen in die umgebende Landschaft werden bewusst freigehalten. Die Erschließung aller Wohnhäuser erfolgt über den zentralen Platz, durch Unterschneidungen werden klar definierte Eingangsbereiche geschaffen. Jedes Gebäude erhält über eine individuelle Farbgebung der Gemeinschaftsflächen eine eigene Adresse.





Die Erschließung der insgesamt 184 Apartments erfolgt über offene Laubengänge um lichte, grüne Innenhöfe. Zum gemeinschaftlichen Anger hin öffnen sich die Gebäude mit ihren Eingangsbereichen, großzügig mit Schiebeelementen verglasten Gemeinschaftsräumen und offenen Gemeinschaftsterrassen.
Die Lärchenholzfassaden werden durch Einschnitte und versetzende Fensteranordnungen rhythmisiert und gegliedert. Über abgestufte Farbmotive der Fassaden der Erschließungskerne, der Orientierungssysteme und der Möblierungen erhält jedes Gebäude in der Einheit einen individuellen Akzent.




Neubau Studentenwohnanlage mit Kita
| Lage: | Bürgermeister-Zeiler-Straße, Landshut |
| Verfahren: | Realisierungswettbewerb 2013, 1.Preis |
| Auftraggeber: | Studentenwerk Niederbayern/Oberpfalz |
| Nutzung: | Wohnen, Bildung |
| Kennzahlen: | 6.927 qm BGF |
| Leistung: | LPH 1-9 |
| Status: | Fertiggestellt 2017 |
| Freiraumplanung: | Raschauer Landschaftsarchitektur |
| Fachplaner: | IB PEMA , Bummer Hof Planungs-GmbH, Seeberger Friedl und Partner |
| Bauweise: | Stahlbetonbau, Holzbau |
| Apartments: | 184 |
| Auszeichnung: | BDA Regionalpreis Niederbayern/Oberpfalz 2018, Bauherrenpreis Landshut 2018 |
| Veröffentlichung: | Junge Beiträge zur Architektur: one step beyond # German Contributions to Architecture, Architektur in Landshut 1950 – 2016 |
| Fotos: | Jochen Stüber |
| Team: | Timo Heise, Esther Bogisch, Netsanet Reinsberg |