
Tanzschule Köln
Der Neubau der Hochschule für Musik und Tanz ist der entscheidende Baustein in einer spannungsvollen Choreografie aus Bestandsbauten, dem Baudenkmal des Hauptgebäudes und neu zu schaffenden Campusräumen zwischen Dagobertstraße, Im Krahnenhof und Thürmchenswall.
Der Entwurf nutzt das spannungsvolle Element der Diagonale als entwurfsbestimmendes Prinzip. Vorhandene Punkte von First und Traufe, von Eingang und Durchgang sowie Straßenfluchten werden über diagonale Verbindungen zu einem Neubau komponiert, welcher sich einzugliedern weiß und doch an geeigneter Stelle das Rampenlicht sucht.


Der Neubau der Hochschule für Musik und Tanz passt sich als eigenständige Skulptur dennoch in das Ensemble der Bestandsbauten ein und erzeugt mit diesen als Gegenüber gemeinsame Außenräume, die als Campus lesbar sind.
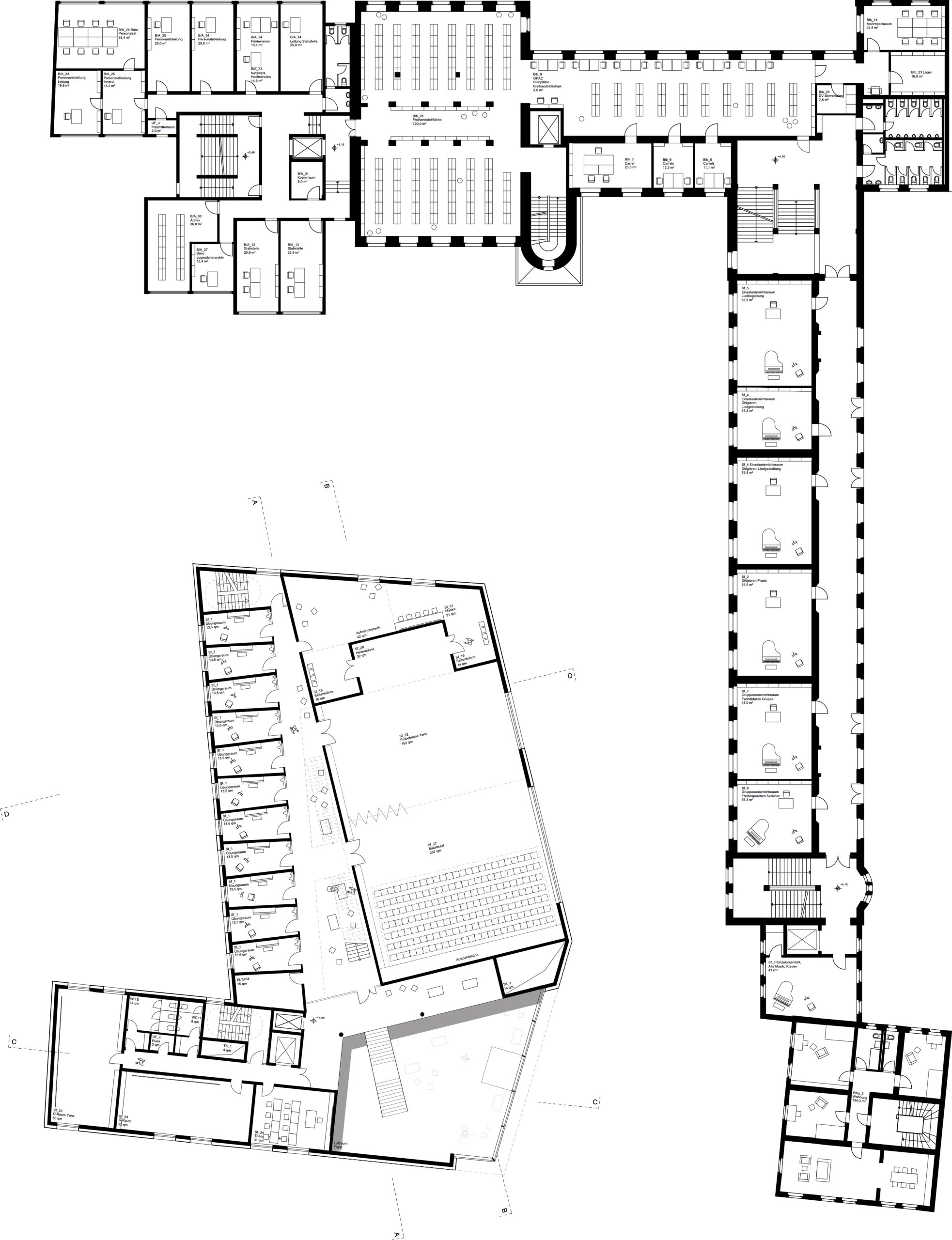
Charakterisches Element des Neubaus ist neben den gezielt gesetzten und in den Größen stark differenzierten Fensteröffnungen das gefaltete Dach.
Der First der Brandwand, welche an das Entwurfsgebiet grenzt und an die der Neubau anschließt, wird über eine Diagonale mit der Traufe verbunden. Im weiteren Verlauf wirft sich die Kante auf, zitiert gegenüberliegende Giebeldächer, um dann gleich wieder steil abzufallen und schließlich ruhig im Hofinnenraum auszulaufen. Eine fünfte Fassade entsteht, die den neuen Baustein behutsam ins Stadtgefüge integriert und gleichzeitig die akustische Optimierung der darunter liegenden Räume in ihrer Gestaltung nach Außen abbildet.










Campus der Hochschule für Musik und Tanz
| Lage: | Dagobertstraße, Köln |
| Verfahren: | Realisierungswettbewerb 2015, 3.Preis |
| Auftraggeber: | BLB NRW |
| Nutzung: | Bildung |
| Kennzahlen: | 16.306 qm BGF |
| Leistung: | LPH 1-2 |
| Freiraumplanung: | BHF Landschaftsarchitekten |
| Fachplaner: | Werner Sobek Stuttgart, WSGREEN Technologies, ISRW Klapdor |
| Bauweise: | Stahlbetonbau |
| Team: | Christian Dahle, Kay Fischer, Esther Bogisch, Marco Gärtner, Ferdinand Keil |